Slimdrive SLV * Sustav automatskih kliznih vrata za upotrebu na kutnim fasadama ili uglovima
- Proizvod se projektira i proizvodi specifično za objekt
- Vrlo bešuman pogon na istosmjernu struju male potrošnje, visine od samo 7 cm
- Kutnik u pogonskoj vodilici od 90° do 270 °
- Može se umrežiti i integrirati u automatizaciju zgrade korištenjem otvorenog standarda (BACnet).
- Samostalna detekcija grešaka i protokoliranje
- Ulazi i izlazi za različite funkcije s mogućnošću slobodnog parametriranja
- Integrirana punjiva baterija za otvaranje i zatvaranje u slučaju nužde pri prekidu struje
- Hodni mehanizam sa samočišćenjem smanjuje ulaganja u održavanje
- Različita mehanička i električna zaključavanja opcijski su dostupna
Područja primjene
- Dvokrilni sustavi kliznih vrata
- Upotreba na kutnim fasadama ili uglovima
- Unutarnja i vanjska vrata visoke frekvencije prolaska
- Fasade s uskim konstrukcijama stup-prečka
- Staklene fasade s najvišim standardima dizajna
- Moguće širine otvaranja od 900 do 2500 mm
- Težine krila vrata do 120 kg po krilu
- Prikladni profilni sustavi su fino uokvireni profilni sustavi s ISO i mono staklom
- Prikladno za različite profilne sustave
Situacija ugradnje u referentnim objektima i videosnimke
Specifikacije proizvoda
| Slimdrive SLV | |
| Za 2-krilne sustave vrata | Da |
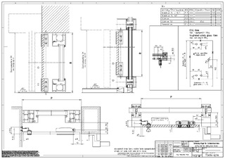
| Visina | 70 mm |
| Dubina | 190 mm |
| Težina krila (maks.), 2-krilno | 120 kg |
| Radna temperatura | -15 - 50 °C |
| Tip zaštite | IP20 |
| Odvajanje od mreže | Glavna sklopka u pogonu |
| Sukladnost s normom | DIN 18650, DIN EN ISO 13849: Performance Level D, EN 16005 |
Preuzimanja
LABELLING OBLIGATION: © Pau Esculies / GEZE GmbH
LABELLING OBLIGATION: © Robert Sprang / GEZE GmbH
LABELLING OBLIGATION: © Dirk Wilhelmy / GEZE GmbH
LABELLING OBLIGATION: © Jürgen Biniasch / GEZE GmbH
LABELLING OBLIGATION: © Jürgen Biniasch / GEZE GmbH
LABELLING OBLIGATION: © Jürgen Biniasch / GEZE GmbH
LABELLING OBLIGATION: © Jürgen Biniasch / GEZE GmbH
LABELLING OBLIGATION: © Jürgen Biniasch / GEZE GmbH
LABELLING OBLIGATION: © Dirk Wilhelmy / GEZE GmbH
Varijante i pričvrsni materijal
* Obavijest o prikazanim proizvodima
Prethodno navedeni proizvodi mogu se razlikovati što se tiče oblika, tipa, karakteristika i funkcija (dizajn, dimenzije, dostupnost, odobrenja, standardi itd.) ovisno o državi. Ako imate dodatna pitanja, obratite se svojoj osobi za kontakt GEZE ili nam pošaljite E-Mail .