Slimdrive SL-RC2 * Automatski sustav linearnih kliznih vrata s protuprovalnom funkcijom u skladu s klasom otpora RC2
- Certificirana protuprovalna funkcija prema klasi otpora RC2 (resistance class)
- Funkcija RC2 dostupna je samo u načinu rada „Noć” u kojoj su vrata zaključana pomoću blokada šipki
- Opremljeno blokadom šipki i pojačanim profilnim komponentama
- Vrlo bešuman pogon na istosmjernu struju male potrošnje, visine od samo 7 cm
- Može se umrežiti i integrirati u automatizaciju zgrade korištenjem otvorenog standarda (BACnet).
- Samostalna detekcija grešaka i protokoliranje
- Ulazi i izlazi za različite funkcije s mogućnošću slobodnog parametriranja
- Integrirana punjiva baterija za otvaranje u slučaju nužde kod sigurnosno relevantnih grešaka kao što je npr. prekid struje
- Hodni mehanizam sa samočišćenjem smanjuje ulaganja u održavanje
- Različita mehanička i električna zaključavanja opcijski su dostupna
Područja primjene
- Sustavi jednokrilnih i dvokrilnih kliznih vrata
- Unutarnja i vanjska vrata najviših sigurnosnih zahtjeva
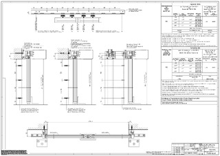
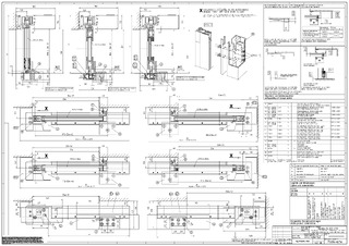
- Moguće širine otvaranja od 800 do 3000 mm
- Težine krila vrata do 120 kg po krilu
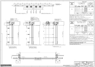
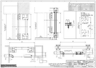
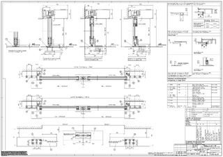
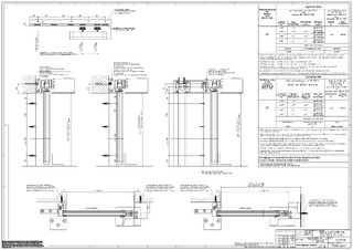
- Prikladni sustavi profila jesu fino uokvireni sustav profila s ISO i mono staklom prema klasi otpora RC2
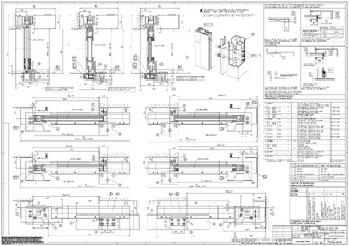
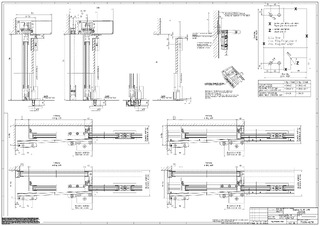
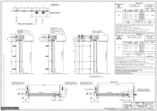
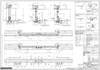
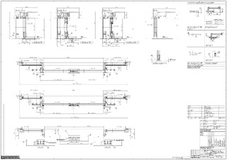
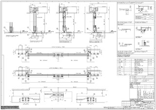
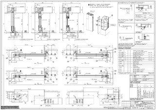
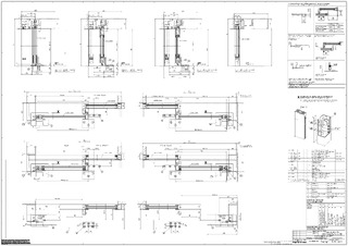
Situacija ugradnje u referentnim objektima i videosnimke
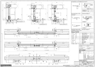
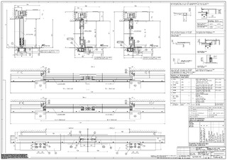
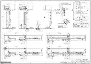
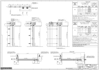
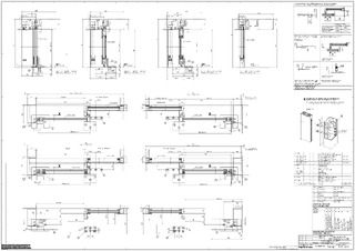
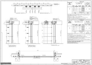
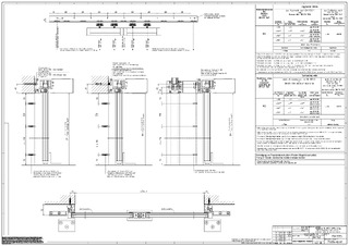
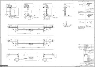
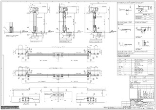
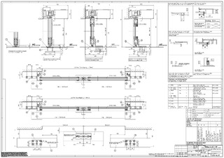
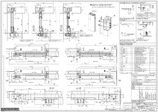
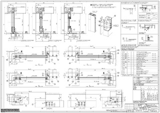
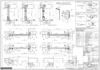
Specifikacije proizvoda
| Slimdrive SL-RC2 | |
| Za 1-krilne sustave vrata | Da |
| Za 2-krilne sustave vrata | Da |
| Izolacijsko staklo fino uokvireno | Da |
| MONO staklo, fino uokvireno | Da |
| Visina | 70 mm |
| Dubina | 190 mm |
| Težina krila (maks.), 1-krilno | 120 kg |
| Težina krila (maks.), 2-krilno | 120 kg |
| Širina otvora, 1-krilno | 800 mm - 3000 mm |
| Širina otvora, 2-krilno | 900 mm - 3000 mm |
| Radna temperatura | -15 - 50 °C |
| Tip zaštite | IP20 |
| Odvajanje od mreže | Glavna sklopka u pogonu |
| Sukladnost s normom | DIN 18650, DIN EN ISO 13849: Performance Level D, EN 16005 |
Preuzimanja
LABELLING OBLIGATION: © Zweitze Korten
LABELLING OBLIGATION: © GEZE GmbH
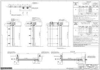
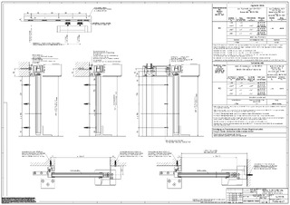
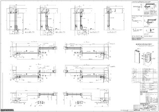
Varijante i pričvrsni materijal
* Obavijest o prikazanim proizvodima
Prethodno navedeni proizvodi mogu se razlikovati što se tiče oblika, tipa, karakteristika i funkcija (dizajn, dimenzije, dostupnost, odobrenja, standardi itd.) ovisno o državi. Ako imate dodatna pitanja, obratite se svojoj osobi za kontakt GEZE ili nam pošaljite E-Mail .