ECdrive T2-FR * Automatski sustav linearnih kliznih vrata u evakuacijskim izlazima i izlazima za spašavanje za vrata s težinom krila do 140 kg
- Tanak dizajn s visinom poklopca od samo 100 mm za veću kreativnu slobodu
- S kliznim mehanizmom s dva kotačića i GCprofile Therm, dopušteno do težine krila od 140 kg
- Učinkovita montaža pomoću prethodno izbušene klizne vodilice i uzdužnih rupa
- Dostupna prolazna podna vodilica za kontrolirano odvođenje kišnice
- Integrirane vodilice kabela olakšavaju polaganje kabela
- Može se umrežiti i integrirati u automatizaciju zgrade korištenjem otvorenog standarda (BACnet).
- Samostalna detekcija grešaka i protokoliranje
- Ulazi i izlazi za različite funkcije s mogućnošću slobodnog parametriranja
- Integrirana punjiva baterija za otvaranje u slučaju nužde pri prekidu struje
- Hodni mehanizam sa samočišćenjem smanjuje ulaganja u održavanje
- Različita mehanička i električna zaključavanja opcijski su dostupna
- Servisno sučelje za jednostavno održavanje
Tankim dizajnom ECdrive T2-FR pruža nove mogućnosti oblikovanja i to s izvrsnim omjerom cijene i performansi. U kombinaciji s profilnim sustavom GCprofile Therm energetska učinkovitost dodatno je poboljšana.
Područja primjene
- Jednokrilni i dvokrilni sustavi kliznih vrata na evakuacijskim izlazima i izlazima za spašavanje
- Unutarnja i vanjska vrata visoke frekvencije prolaska
- Kompletno rješenje za ulazna područja s GCprofile Therm i nadsvjetlom
- Kod povećanim zahtjevima za nepropusnošću ili energetskom učinkovitošću
- Moguće širine otvaranja od 700 do 3000 mm
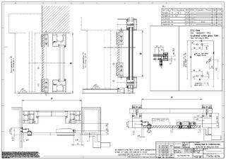
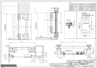
- Težine krila vrata do 140 kg po krilu
- Prikladni profilni sustavi su fino uokvireni profilni sustavi s izolacijskim i monostaklom, GCprofile Therm, ESG steznim profilom, okvirom i drvenim krilom na lokaciji
Situacija ugradnje u referentnim objektima i videosnimke
Specifikacije proizvoda
| ECdrive T2-FR | |
| Za 1-krilne sustave vrata | Da |
| Za 2-krilne sustave vrata | Da |
| Izolacijsko staklo fino uokvireno | Da |
| MONO staklo, fino uokvireno | Da |
| Stezni profil za jednostruko sigurnosno staklo | Da |
| Krilo s okvirom (na lokaciji) | Da |
| Visina | 100 mm |
| Dubina | 190 mm |
| Težina krila (maks.), 1-krilno | 120 kg |
| Težina krila (maks.) 1-krilno s GCprofile Therm i kliznim mehanizmom s dva kotačića | 140 kg |
| Težina krila (maks.), 2-krilno | 120 kg |
| Težina krila (maks.) 2-krilno s GCprofile Therm i kliznim mehanizmom s dva kotačića | 140 kg |
| Širina otvora, 1-krilno | 700 mm - 3000 mm |
| Širina otvora, 1-krilno s GCprofile Therm | 1500 mm |
| Širina otvora, 2-krilno | 900 mm - 3000 mm |
| Širina otvora, 2-krilno s GCprofile Therm | 3000 mm |
| Radna temperatura | -15 - 50 °C |
| Tip zaštite | IP20 |
| Odvajanje od mreže | Glavna sklopka u pogonu |
| Sukladnost s normom | AutSchR, DIN 18650, DIN EN ISO 13849: Performance Level D, EN 16005 |
Preuzimanja
LABELLING OBLIGATION: © Robert Sprang / GEZE GmbH
LABELLING OBLIGATION: © Robert Sprang / GEZE GmbH
LABELLING OBLIGATION: © Robert Sprang / GEZE GmbH
LABELLING OBLIGATION: © Robert Sprang / GEZE GmbH
LABELLING OBLIGATION: © Lorenz Frey / GEZE GmbH
LABELLING OBLIGATION: © GEZE GmbH
LABELLING OBLIGATION: © GEZE GmbH
LABELLING OBLIGATION: © GEZE GmbH
LABELLING OBLIGATION: © GEZE GmbH
Varijante i pričvrsni materijal
* Obavijest o prikazanim proizvodima
Prethodno navedeni proizvodi mogu se razlikovati što se tiče oblika, tipa, karakteristika i funkcija (dizajn, dimenzije, dostupnost, odobrenja, standardi itd.) ovisno o državi. Ako imate dodatna pitanja, obratite se svojoj osobi za kontakt GEZE ili nam pošaljite E-Mail .