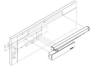
TS 5000 SoftClose * Zatvarač vrata s kliznom vodilicom za jednokrilna vrata sa širinom krila do 1400 i s graničnikom/ funkcijom kočenja
- Kontinuirano podesiva sila zatvaranja od EN 2-6
- Može se upotrebljavati za vrata s otvaranjem nadesno i nalijevo bez premještanja
- Graničnik / krajnja kočnica mogu se namjestiti sprijeda pomoću ventila
- Brzina zatvaranja može se individualno namjestiti
- Integrirano prigušenje otvaranja, koči snažno otvorena vrata
- Optički indikator sile zatvaranja za lakšu kontrolu namještanja
Ovaj gornji zatvarač vrata za jednokrilna vrata ima jasne linije. Odobren je za montažu na protupožarna i protudimna vrata.
Područja primjene
- Protupožarna i protudimna zaštitna vrata
- Desna i lijeva zaokretna vrata
- Zaokretna vrata s širinom krila do 1400 mm
- Montaža na krilo vrata na strani spojnica i montaža na okvir na strani suprotnoj spojnicama
Situacija ugradnje u referentnim objektima i videosnimke
Specifikacije proizvoda
| TS 5000 SoftClose | |
| Sila zatvaranja prema EN 1154 | EN 2 - 6 |
| Bez prepreka u skladu s DIN 18040 do širine vrata (maks.) u mm | 1100 mm |
| Širina krila (maks.) | 1400 mm |
| Vrsta montaže | Montaža krila vrata na strani spojnica, Ugradnja na gornju prečku na suprotnu stranu spojnica |
| Kut otvaranja (maks.) | 180 ° |
| Prikladnost za protupožarna vrata | Da |
| Podesiva sila zatvaranja | Da, kontinuirano |
| Podesiva brzina zatvaranja | Da |
| Podesivi završni moment zatvaranja | Da, preko ventila |
| Brzina završnog momenta zatvaranja, podesiva | Da |
| Integrirani prigušivač otvaranja | Ja, hidrauličko namještanje |
| Položaj namještanja sile zatvaranja | Sprijeda |
| Optički indikator sile zatvaranja | Da |
| Blokada | Opcijski |
Preuzimanja
LABELLING OBLIGATION: © GEZE GmbH
LABELLING OBLIGATION: © GEZE GmbH
LABELLING OBLIGATION: © GEZE GmbH
LABELLING OBLIGATION: © Jürgen Biniasch / GEZE GmbH
Varijante i pričvrsni materijal
* Obavijest o prikazanim proizvodima
Prethodno navedeni proizvodi mogu se razlikovati što se tiče oblika, tipa, karakteristika i funkcija (dizajn, dimenzije, dostupnost, odobrenja, standardi itd.) ovisno o državi. Ako imate dodatna pitanja, obratite se svojoj osobi za kontakt GEZE ili nam pošaljite E-Mail .