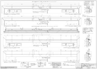
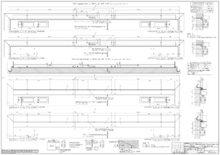
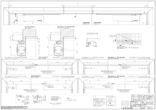
TS 5000 L-ISM VPK

ISM guide rail BG VPK TS 5000 complete CB flex * Overhead door closer system with guide rail, for opposite hinge side, for double leaf doors with anti-panic function and closing sequence control

Door closer TS 5000 L-ISM VPK Overhead door closer system with guide rail opposite hinge side for double leaf doors with anti-panic function, closing sequence control and hydraulic latching action.
  • Complete package with two TS 5000 L and TS 5000 L-IS door closers with ISM guide rail
  • Closing force of EN 2-6 with variable adjustment
  • Can be used for right and left hand doors without conversion
  • Full panic function on both door leaves up to x dimension 110 mm
  • Closing sequence control holds the active leaf in the waiting position until the passive leaf is closed
  • Hydraulic latching action which accelerates the door shortly before it is closed
Show more
  • Closing speed can be individually adjusted
  • Integrated back check, slows down doors that are thrown open forcefully
  • Visual closing force display for easy control of the setting
  • All functions can be adjusted from the front
Contact us

Application Areas

  • Fire and smoke protection doors
  • Double leaf single-action doors with panic function
  • Symmetrical and asymmetrical division of door possible
  • Single-action doors up to 2800 mm hinge clearance and 1400 mm leaf width
  • Door weight up to 180 kg
  • Door leaf installation opposite hinge side

Technical data

ISM guide rail BG VPK TS 5000 complete CB flex
Leaf width (max.) 1400 mm
Identical design for DIN left and DIN right Yes
Minimum hinge clearance 1300 mm
Minimum passive leaf width 380 mm
Standard conformity EN 1154:1996/A1:2002/AC:2006, EN 1158
Length 2730 mm
Width 55 mm
Height 30 mm
Closing sequence control integrated Yes
Height correction possible Yes
Flexible opening restrictor Yes

Downloads

Variants & Accessories

Contact

GEZE Central +385-1-3773540 GEZE Service +385-9-1604-9737 Hotline for architects +385-9-1255-5022