Application Areas
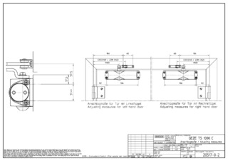
- Right and left single-action doors
Technical data
| Link arm TS 1500 / 1000 C | |
| Hold-open function | No |
Downloads
Variants & Accessories
* Notice about the products displayed
The products mentioned above may vary in form, type, characteristics and function (design, dimensions, availability, approvals, standards etc.) depending on the country. For questions please contact your GEZE contact person or send us an E-Mail .